Комплектация включает в себя:
| Технология | Каркасная технология |
Возможны любые изменения во внешнем виде, планировке и комплектации.Стоимость указана без учета работы. Итоговая стоимость зависит от комплектации и месяца строительства. |
|
| Фундамент | Свайно-винтовой |
| Стены
|
-Каркас толщиной 100мм с шагом 590 мм., с усилением
-Вентиляционный зазор -Наружная отделка – Вагонка -Теплоизоляция 1 и 2 эт. – 100 мм. -Гидро-ветроизоляция -Внутренняя отделка (стены 1 и 2 эт.) – Вагонка |
| Перекрытия и полы | -Покрытие полов 1 и 2 эт. – шпунтованная доска
-Внутренняя отделка (потолки 1 и 2 эт.) – ГКЛВ -Теплоизоляция пола 1 эт. – 100 мм. |
| Кровля | -Стропила крыши – доска 50х150мм. -Обрешетка -Гидро-ветроизоляционная мембрана -Крашеный профнастил -Карнизы – Вагонка |
| Окна | ПВХ (размеры в соответствии с проектом) |
| Двери межкомнатные | Филенчатые |
| Дверь входная | Металлическая |
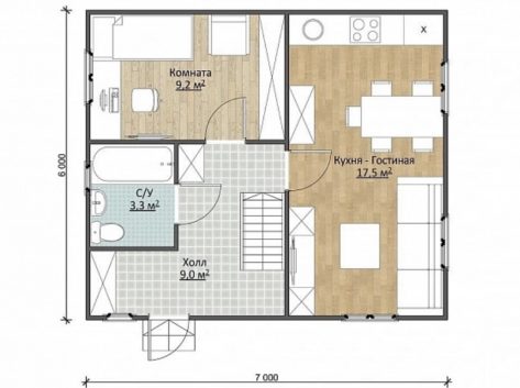
| Лестница | По проекту |
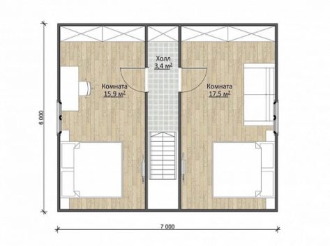
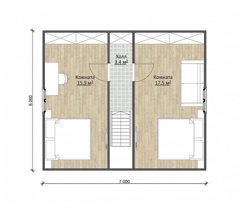
| Высота 1 этажа | 2,4 м. |
| Высота 2 этажа | 2,2 м. |
| Коммуникации
(электрика, отопление, септик, скважина) |
Рассчитываются отдельно |
| Стоимость |
990 000 руб.
|



