Комплектация включает в себя:
| Технология | Каркасная технология |
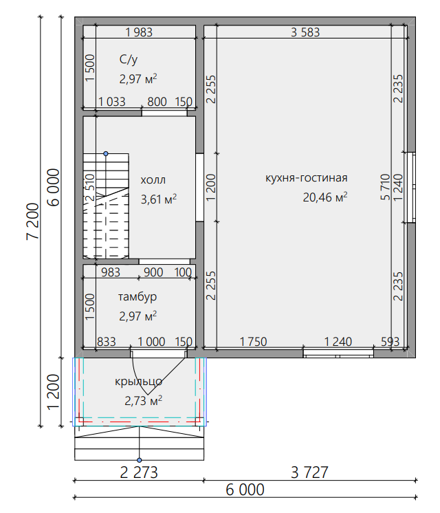
Возможны любые изменения во внешнем виде, планировке и комплектации.Стоимость указана без учета работ. Итоговая сумма зависит от комплектации и месяца строительства дома. |
|
| Фундамент | Свайно-винтовой |
| Стены | -Каркас толщиной 100мм с шагом 590 мм., с усилением
-Вентиляционный зазор -Наружная отделка – Вагонка -Теплоизоляция 1 эт. – 50мм. -Гидро-ветроизоляция -Внутренняя отделка (стены 1 и 2 эт.) – Вагонка |
| Перекрытия и полы | -Покрытие полов 1 и 2 эт. – шпунтованная доска
-Внутренняя отделка потолков– Вагонка -Теплоизоляция пола 1 эт. – 50мм. |
| Кровля | -Стропила крыши – доска 50х100мм -Обрешетка -Гидро-ветроизоляционная мембрана -Оцинкованный профнастил -Карнизы – Вагонка |
| Окна | По проекту |
| Двери межкомнатные | Филенчатые |
| Дверь входная | Металлическая |
| Лестница | ПВХ, по проекту |
| Высота 1 этажа | 2,4 м. |
| Высота 2 этажа | 2,2 м. |
| Дополнения | Возможно поэтапное строительство дома:
1 этап — фундамент, возведение каркаса под кровлю, окна, входная дверь 2 этап — внутренняя отделка |
| Стоимость: |
1 150 000 руб.
|




