Комплектация включает в себя:
| Технология | Сборно-каркасная |
Возможны любые изменения во внешнем виде, планировке и комплектации.Стоимость указана без учета работы. Итоговая стоимость зависит от комплектации и месяца строительства. |
|
| Фундамент | Забивные ЖБ сваи |
| Каркас | — Деревянный каркас несущих стен из доски сечением 50х150 мм. (шаг 590 мм.), с усилением. Лаги пола, перекрытия –доска 50х200 мм. (шаг 590 мм.)
-Утепление наружных стен, пола, потолка: 150 мм. — Мембранные плёнки: Влаго-ветроизоляция А по наружному контуру утеплителя; Паро-изоляция В по внутреннему контуру утеплителя |
| Кровля | Металлочерепица (цвета в ассортименте) |
| Наружная отделка | Хауберг (отделка под кирпич) или Рау-Хаус (имитация бруса) с заводской покраской |
| Внутренняя отделка | Настил пола — Фанера
Отделка стен, перегородок и потолков — ГКЛв Отделка потолка — под натяжные |
| Окна | ПВХ, двухкамерный стеклопакет (по проекту) |
| Двери | Межкомнатные — МДФ
Входная — Металлическая, утепленная |
| Лестница | По проекту, с ограждениями |
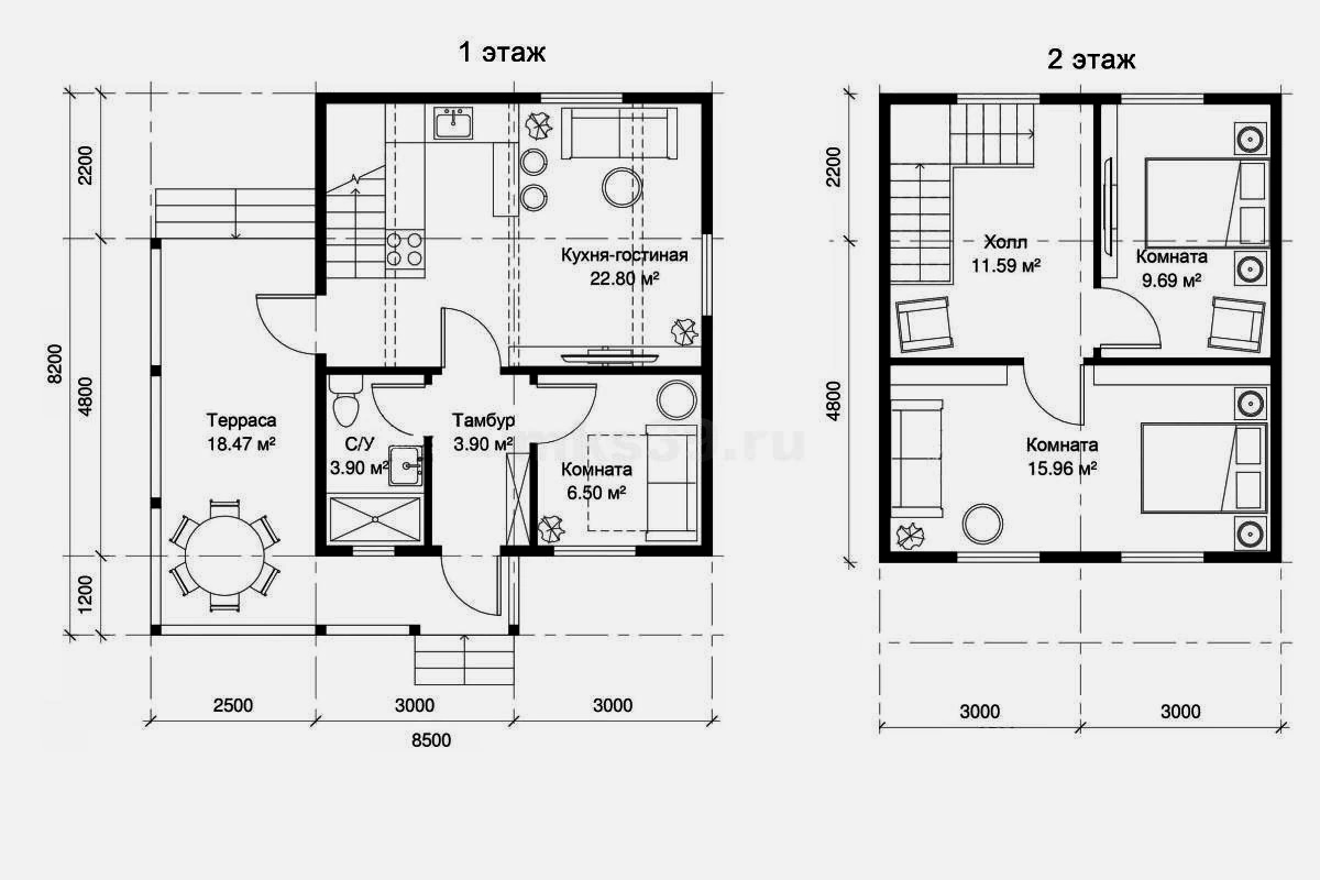
| Высота этажей | 1 этаж — 2,7 м.
2 этаж — 2,5 м. |
| Стоимость: | 2 100 000 руб. |


