Вернуться

Коттедж «Карелия 5»

Акции

Для данного товара нет акций
Все акции

Коттедж «Карелия 5»

2 080 000 руб.

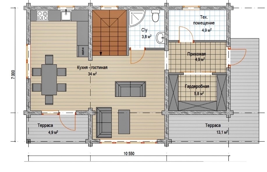
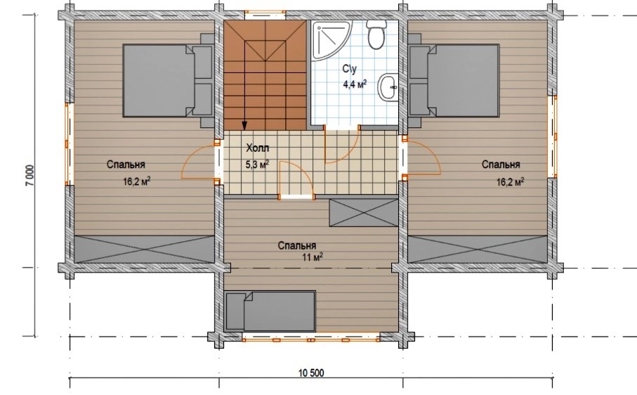
Размеры: 8 х 10 м.
Общая площадь помещений: 124,5 м.кв.
Этажность: 2
Срок строительства: 2 месяца

Категории:,

Комплектация включает в себя:

Технология: Сборно-каркасная
Возможны любые изменения во внешнем виде, планировке и комплектации.

Стоимость указана без учета работы. Итоговая стоимость зависит от комплектации и месяца строительства.

Фундамент Забивные ЖБ сваи
Каркас -Деревянный каркас несущих стен из доски сечением 50х150 мм. (шаг 590 мм.), с усилением. Лаги пола, перекрытия –доска 50х200 мм. (шаг 590 мм.)

-Утепление наружных стен, пола, потолка: 150 мм.

-Мембранные плёнки: Влаго-ветроизоляция А по наружному контуру утеплителя; Паро-изоляция В по внутреннему контуру утеплителя

Кровля Металлочерепица (цвета в ассортименте)
Наружная отделка Рау-Хаус (имитация бруса) с заводской покраской или Хауберг (отделка под кирпич)
Внутренняя отделка Отделка стен, перегородок и потолков — ГКЛв
Настил пола — Фанера
Окна ПВХ, двухкамерный стеклопакет (по проекту)
Двери Межкомнатные — филенчатые

Входная — металлическая, утепленная

Лестница По проекту, с ограждениями
Высота  этажей 1 этаж — 2,7 м

2 этаж — 2,5 м.

Стоимость 2 080 000 руб.

ПОДОБНЫЕ ПРОЕКТЫ