Вернуться

Коттедж «Ливерпуль»

Акции

Для данного товара нет акций
Все акции

Коттедж «Ливерпуль»

1 800 000 руб.

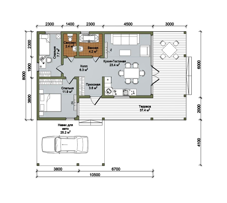
Размеры: 13,5 х 8 м. + навес под авто
Общая площадь помещений: 97 м.кв.
Этажность:   1
Срок строительства: 2 месяц
Категория:

Комплектация включает в себя:

Технология Каркасная технология
Возможны любые изменения во внешнем виде, планировке и комплектации.

Стоимость указана без учета работы. Итоговая стоимость зависит от комплектации и месяца строительства.

Фундамент Забивные ЖБ сваи
Каркас -Деревянный каркас несущих стен из доски сечением 50х150 мм. (шаг 590 мм.), с усилением. Лаги пола, перекрытия –доска 50х200 мм. (шаг 590 мм.)

-Утепление наружных стен, пола, потолка: 150 мм.

-Мембранные плёнки: Влаго-ветроизоляция А по наружному контуру утеплителя; Паро-изоляция В по внутреннему контуру утеплителя

Кровля Металлочерепица (цвета в ассортименте)
Наружная отделка Рау-Хаус (имитация бруса) с заводской покраской или Хауберг (отделка под кирпич)
Внутренняя отделка Настил пола — Фанера

Стены — ГКЛв

Окна ПВХ, двухкамерный стеклопакет (размеры в соответствии с проектом)
Двери Межкомнатные — филенчатые

Входная — металлическая, утепленная

Лестница
Высота  этажа 3,0м. (со вторым светом)
Стоимость:
1 800 000 руб.

ПОДОБНЫЕ ПРОЕКТЫ