Комплектация включает в себя:
| Технология: | Каркасная технология |
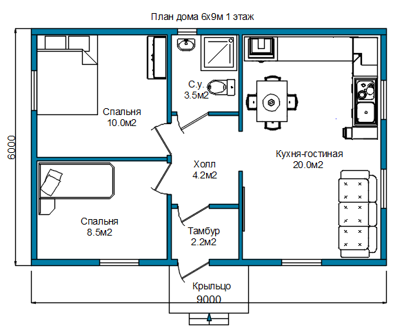
Возможны любые изменения во внешнем виде, планировке и комплектации.Стоимость указана без учета работ. Итоговая сумма зависит от комплектации и месяца строительства дома. |
|
| Фундамент | Свайно-винтовой |
| Стены
|
-Каркас толщиной 100мм с шагом 590 мм., с усилением
-Вентиляционный зазор -Наружная отделка – Вагонка -Теплоизоляция – 50мм. -Гидро-ветроизоляция -Внутренняя отделка стен – Вагонка |
| Перекрытия и полы | -Покрытие пола – шпунтованная доска
-Внутренняя отделка потолка – Вагонка -Теплоизоляция пола – 50мм |
| Кровля | -Обрешетка -Гидро-ветроизоляционная мембрана -Оцинкованный профнастил -Карнизы – Вагонка |
| Окна | По проекту |
| Двери межкомнатные | Филенчатые |
| Дверь входная | Филенчатая |
| Лестница: | — |
| Высота этажа | 2,4 м. |
| Дополнения | Возможно поэтапное строительство дома:
1 этап — фундамент, возведение каркаса под кровлю, окна, входная дверь 2 этап — внутренняя отделка |
| Стоимость: |
1 200 000 руб.
|

