Вернуться

«Виктория»

Акции

Для данного товара нет акций
Все акции

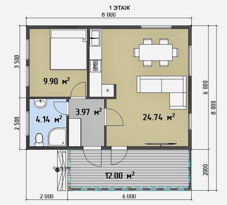
«Виктория»

820 000 руб.

Размеры: 6 х 8 м
Общая площадь помещений: 42,75 м.кв. + терраса 12 кв.м
Этажность: 1
Срок строительства: 20 дней
Категории:, ,

Комплектация включает в себя:

Технология

 

Каркасная технология

Возможны любые изменения во внешнем виде, планировке и комплектации.

Стоимость указана без учета работ. Итоговая сумма зависит от комплектации и месяца строительства дома.

Фундамент Свайно-винтовой
Стены -Каркас толщиной 100мм. с шагом 590 мм, с усилением

-Вентиляционный зазор

-Наружная отделка – Вагонка

-Теплоизоляция – 50мм.

-Гидро-ветроизоляция

-Внутренняя отделка стен – Вагонка

Перекрытия и полы -Покрытие пола – шпунтованная доска

-Внутренняя отделка потолка – Вагонка

-Теплоизоляция пола – 50мм.

Кровля -Стропила крыши – доска 50х100мм
-Обрешетка
-Гидро-ветроизоляционная мембрана
-Оцинкованный профнастил
-Карнизы – Вагонка
Окна По проекту
Двери межкомнатные Филенчатые
Дверь входная Филенчатая
Лестница
Высота этажа 2,4 м.
Дополнения Возможно поэтапное строительство дома:

1 этап — фундамент, возведение каркаса под кровлю, окна, входная дверь

2 этап — внутренняя отделка

Стоимость
820 000 руб.

ПОДОБНЫЕ ПРОЕКТЫ

«Афины»

720 000 руб.

Размеры: 7,5 х 9,5 м.
Общая площадь помещений: 67 м.кв.
Этажность: 1
Срок строительства:  1 месяц

«Ясень»

1 700 000 руб.

Размеры: 8,5 х 7,2 м
Общая площадь помещений: 84 м.кв.
Этажность:  2
Срок строительства: 1 месяц

«Амстердам»

987 000 руб.

Размеры: 6,0 х 6,0 м + терраса 1,6 м.
Общая площадь помещений: 72 м.кв.
Этажность:   2
Срок строительства: 21 день