Комплектация включает в себя:
| Возможны любые изменения в проекте, комплектации и планировке.
Стоимость указана без учета работ. Итоговая стоимость зависит от комплектации и месяца строительства. |
|
| Технология | Проект может быть исполнен из клееного бруса и профилированного бруса |
| Фундамент | -забивные ЖБ сваи
-нижняя обвязка 200х200 мм. -лаги пола- 50х200 мм., камерной сушки -обработка нижней обвязки и лаг антисептиком |
| Стены | -профилированный брус 200х200 мм.
-межвенцовый утеплитель – джут -стопа из профилированного бруса монтируется на деревянные нагеля -утепление 200 мм. |
| Перекрытия и полы | -доска 50х200мм 1 и 2 этажей
-обработка антисептиком нижней обвязки -утепление 200 мм. -гидроизоляционная мембрана. пароизоляционная плёнка |
| Кровля | -стропила крыши – доска камерной сушки 50х200мм.
-обрешетка -гидро-ветроизоляционная мембрана -покрытие — Металлочерепица |
| Окна | ПВХ, двухкамерный стеклопакет (размеры в соответствии с проектом) |
| Двери и лестница | -межкомнатные двери — филенчатые
-входная дверь — металлическая, с терморазрывом -лестница — по проекту, с ограждениями |
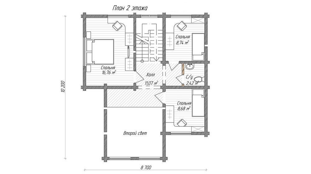
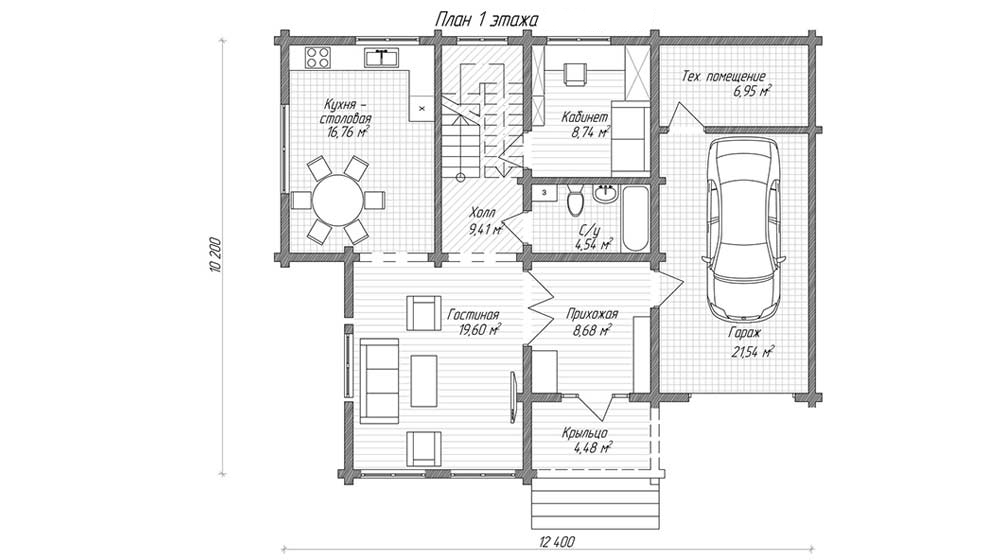
| Высота этажей | 1 этаж — 2,7м.
2 этаж — 2,5м. |
| Коммуникации
(электрика, отопление, вентиляция, септик, скважина) |
рассчитываются отдельно |
| Стоимость |
3 600 000 руб.
|






Отзывы
Пока никто ничего не написал, хотите вы оставить свой отзыв?