Комплектация включает в себя:
| Технология | Каркасная технология |
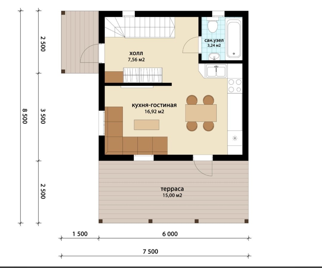
Возможны любые изменения во внешнем виде, планировке и комплектации.Стоимость указана без учета работ. Итоговая сумма зависит от комплектации и месяца строительства дома. |
|
| Фундамент | Свайно-винтовой |
| Стены
|
-Каркас толщиной 100мм с шагом 590 мм, с усилением
-Вентиляционный зазор -Наружная отделка – Вагонка -Теплоизоляция 1 и 2 эт. – 100 мм. -Гидро-ветроизоляция -Внутренняя отделка (стены 1 и 2 эт.) – Вагонка |
| Перекрытия и полы | -Покрытие полов 1 и 2 эт. – шпунтованная доска
-Внутренняя отделка (потолки 1 и 2 эт.) – Вагонка -Теплоизоляция пола 1 эт. – 100 мм. |
| Кровля | -Стропила крыши – доска 50х100мм -Обрешетка -Гидро-ветроизоляционная мембрана -Крашеный профнастил -Карнизы – Вагонка |
| Окна | ПВХ (размеры в соответствии с проектом) |
| Двери межкомнатные | Филенчатые |
| Дверь входная | Металлическая, утепленная |
| Лестница | По проекту |
| Высота 1 этажа | 2,4 м. |
| Высота 2 этажа | 2,2 м. |
| Дополнения | Возможно поэтапное строительство дома:
1 этап — фундамент, возведение каркаса под кровлю, окна, входная дверь 2 этап — внутренняя отделка |
| Стоимость |
1 200 000 руб.
|


