Комплектация включает в себя:
| Возможны любые изменения в проект, комплектацию и планировку дома.
Стоимость указана без учета работы. Итоговая стоимость зависит от комплектации и месяца строительства. |
|
| Фундамент | Свайно-винтовой: винтовые сваи длиной 2500 мм., диаметр сваи 108 мм. Толщина стенки сваи 4 мм, толщина лопасти 5 мм. Сваи бетонируются пескоцементной смесью М150. Наваривается металлический оголовок 250х250 мм. Свая покрыта 2-х компонентным заводским защитным составом. |
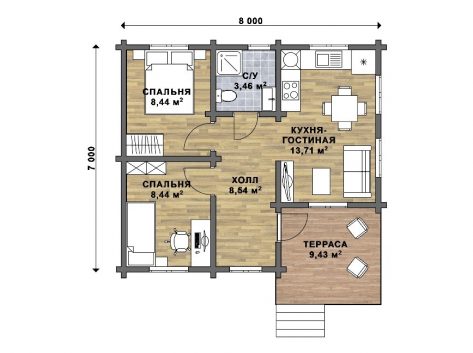
| Стены и перегородки | Стены выполнены из профилированного бруса 145х145 мм. Производство на севере Кировской области. Обвязочный брус 150х150 мм. |
| Перекрытия | -Лаги пола, перекрытия –доска 50х200 мм., обработаны антисептиком
-Утепление: минеральная вата толщиной 100 мм. -Мембранные плёнки: Влаго-ветроизоляция А по наружному контуру утеплителя; Пароизоляция В по внутреннему контуру утеплителя |
| Кровля: | -Стропильная система из доски 40х150 мм. — Влаго-ветроизоляция А по наружному контуру утеплителя; Пароизоляция В по внутреннему контуру утеплителя. -Кровельное покрытие – Крашеный профнастил по обрешетке. -Подшив карнизов и свесов кровли – имитация бруса (Рау-Хаус) |
| Внутренняя отделка | -Внутренняя отделка потолков: Вагонка
-Настил пола: шпунтованная доска |
| Окна | ПВХ, двухкамерный стеклопакет (размеры в соответствии с проектом) |
| Двери | Межкомнатные — деревянные
Входная — металлическая, утепленная |
| Высота этажа | 2,5 м. |
| Электрика, отопление | Рассчитываются отдельно. |
| Стоимость | 1 450 000 руб |






Отзывы
Пока никто ничего не написал, хотите вы оставить свой отзыв?