Вернуться

«Дом из клееного бруса П-4»

Акции

Для данного товара нет акций
Все акции

«Дом из клееного бруса П-4»

4 500 000 руб.

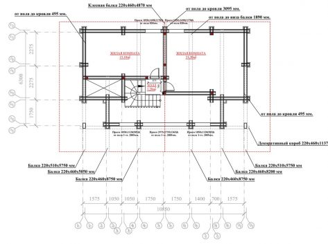
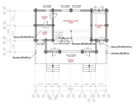
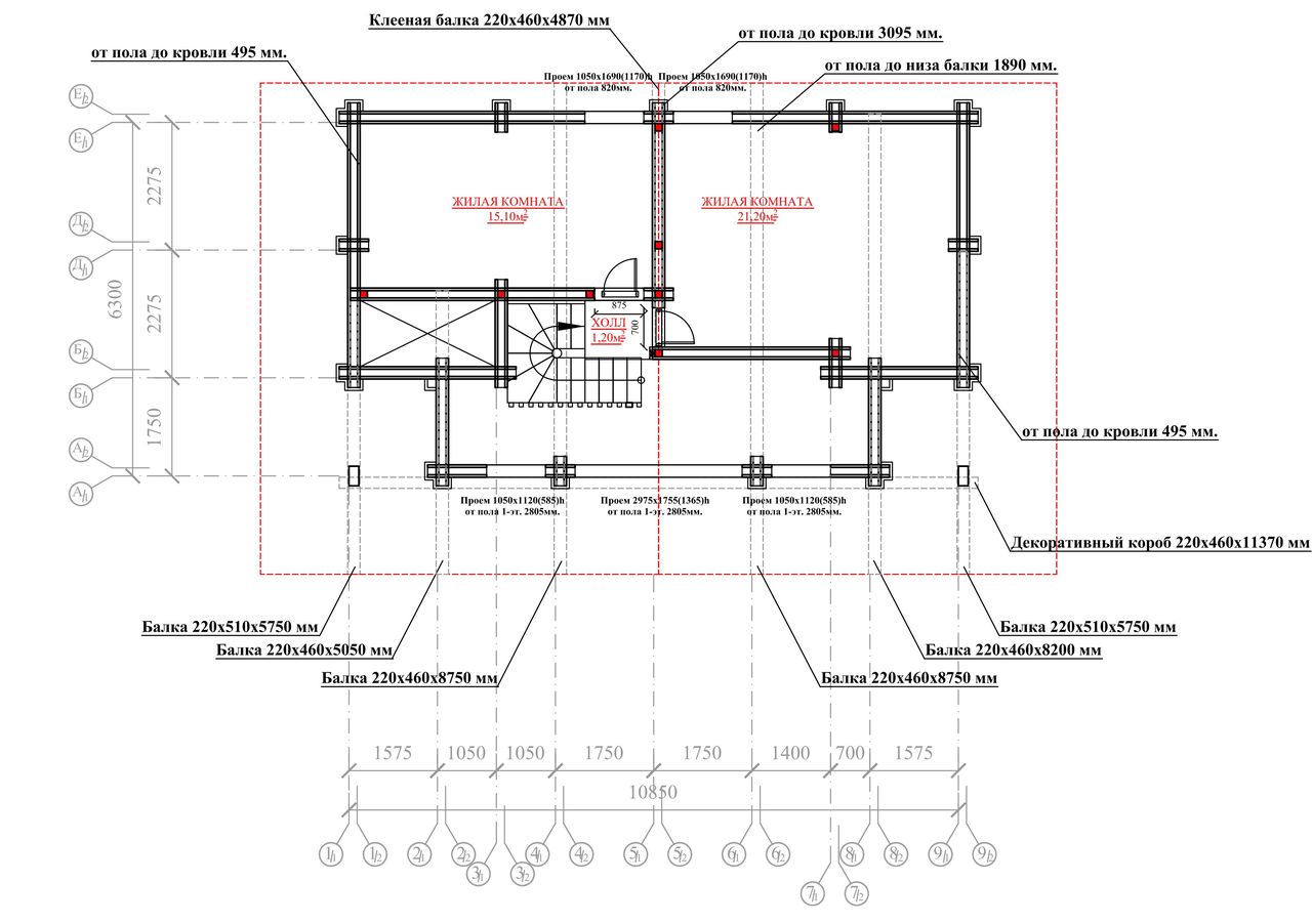
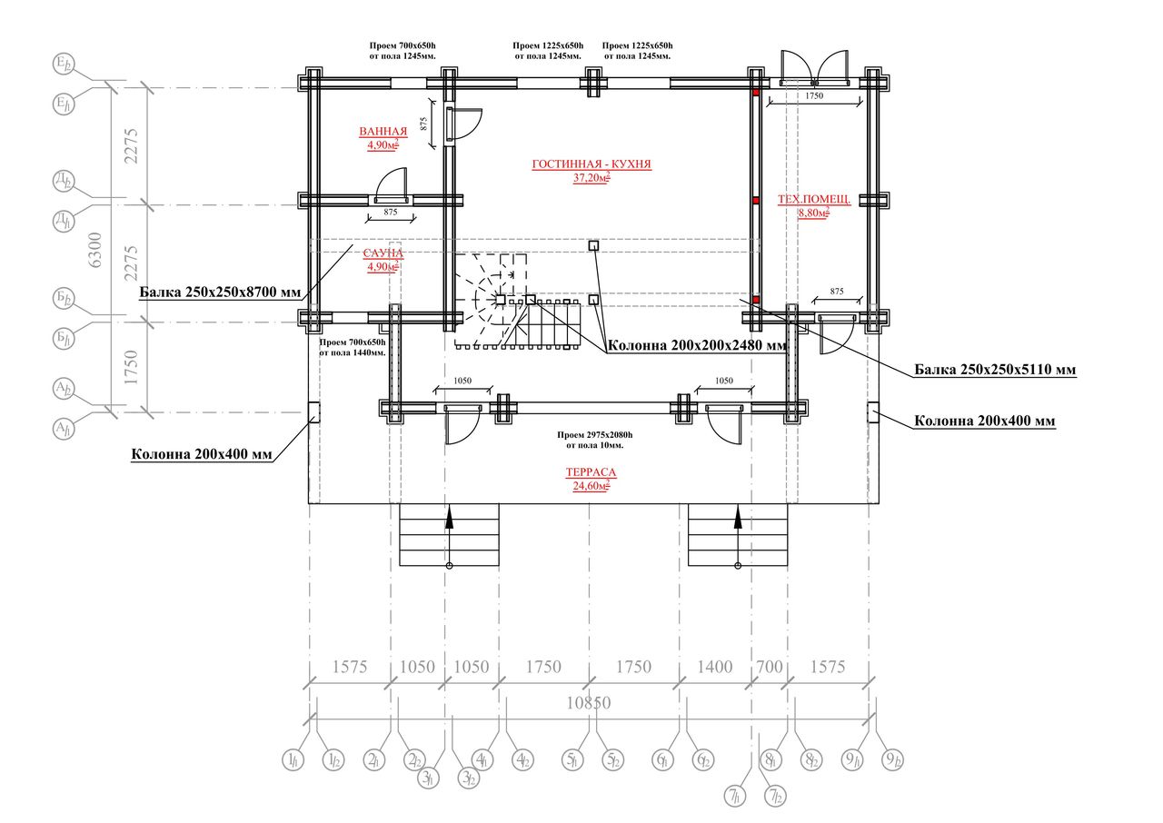
Площадь: 115 м2

Размер: 6,3 х 11,0

Этажность: 2

Срок строительства: 3 месяца

Категории:,

Комплектация включает в себя:

Возможны любые изменения в проекте, комплектации и планировке.

Стоимость указана без учета работ. Итоговая стоимость зависит от комплектации и месяца строительства.

Технология Проект может быть исполнен из клееного бруса и профилированного бруса камерной сушки.
Фундамент Рассчитывается отдельно, в стоимость не входит
Стеновой комплект  Клеёный профилированный брус сечением 160х185(h) мм. Балки и столбы клеёные
Перекрытия -доска 50х200мм 1 и 2 этажей

-обработка антисептиком нижней обвязки

Кровля -Стропильная система: Доска камерной сушки, 50х200 мм.

-Обрешётка верхняя и нижняя, и контрообрешётка: Доска и бруски камерной сушки.

-Утепление кровли: 150 мм. Базальтовый утеплитель.

-Гидроизоляционная мембрана. Пароизоляционная плёнка.

-Кровельные материалы: Металлочерепица

 Окна  Из ПВХ – профиля, двухкамерный стеклопакет (размеры в соответствии с проектом)
Двери и лестница Межкомнатные двери — филенчатые

Входная дверь — металлическая, с терморазрывом

Лестница — по проекту, с ограждениями

Высота  этажей 1 этаж — 2,7м.

2 этаж — 2,5м.

Коммуникации

(электрика, отопление, вентиляция, септик, скважина)

Рассчитываются отдельно
Стоимость 
4 500 000 руб.

Отзывы

Пока никто ничего не написал, хотите вы оставить свой отзыв?

Оставьте первый отзыв “"Дом из клееного бруса П-4"”

*

ПОДОБНЫЕ ПРОЕКТЫ