Вернуться

Коттедж «Эльбрус П-7»

Акции

Для данного товара нет акций
Все акции

Коттедж «Эльбрус П-7»

3 200 000 руб.

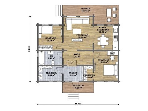
Размеры: 11,4 х 12,2 м.
Общая площадь помещений: 105,3 м.кв.
Этажность:  1
Срок строительства: 2 месяца
Категории:,

Комплектация включает в себя:

Возможны любые изменения в проекте, комплектации и планировке.

Стоимость указана без учета работ. Итоговая стоимость зависит от комплектации и месяца строительства.

Технология Профилированный брус
Фундамент -забивные ЖБ сваи

-нижняя обвязка 200х200 мм.

-лаги пола- 50х200 мм., камерной сушки

-обработка нижней обвязки и лаг антисептиком

Стены -профилированный брус 195х145 мм.

-межвенцовый утеплитель – джут

-стопа из профилированного бруса монтируется на деревянные нагеля

-утепление 200 мм.

Перекрытия и полы -доска 50х200мм.

-обработка антисептиком нижней обвязки

-утепление 200 мм.

-гидроизоляционная мембрана. пароизоляционная плёнка

Кровля -стропила крыши – доска камерной сушки 50х200мм.

-обрешетка

-гидро-ветроизоляционная мембрана

-покрытие — Металлочерепица

Окна ПВХ, двухкамерный стеклопакет (размеры в соответствии с проектом)
Двери и лестница -межкомнатные двери —  филенчатые

-входная  дверь — металлическая

-лестница — по проекту, с ограждениями

Высота  этажа 1 этаж — 2,7м. Где второй свет — 3,5м.

 

Коммуникации

(электрика, отопление, вентиляция, септик, скважина)

рассчитываются отдельно
Стоимость 
3 200 000 руб.

Отзывы

Пока никто ничего не написал, хотите вы оставить свой отзыв?

Оставьте первый отзыв “Коттедж "Эльбрус П-7"”

*

ПОДОБНЫЕ ПРОЕКТЫ